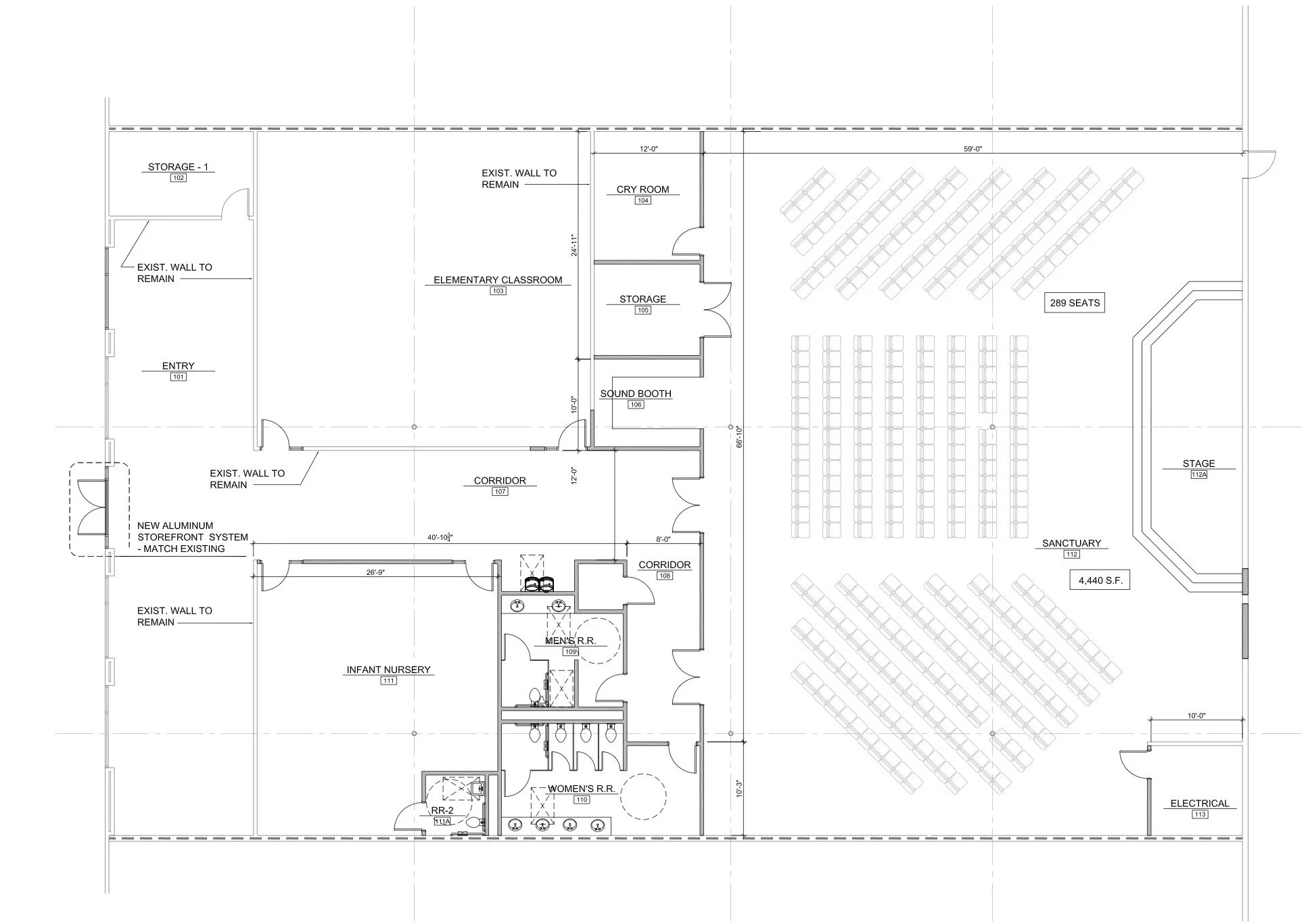
Follow our journey to our new worship center! Lance Kendall Massey 4/4/22 Lance Kendall Massey 4/4/22 Flooring is in! Read More Lance Kendall Massey 2/21/22 Lance Kendall Massey 2/21/22 First Visit to our New Space Read More Lance Kendall Massey 1/28/22 Lance Kendall Massey 1/28/22 Ceiling Paint started… Read More Lance Kendall Massey 1/20/22 Lance Kendall Massey 1/20/22 Sheet Rock completed Read More Lance Kendall Massey 1/19/22 Lance Kendall Massey 1/19/22 Reminder… Read More Lance Kendall Massey 1/18/22 Lance Kendall Massey 1/18/22 Building Progress - 1/18/22 Read More Lance Kendall Massey 1/7/22 Lance Kendall Massey 1/7/22 Sheet rock almost finished! New Front Door! Read More Lance Kendall Massey 12/13/21 Lance Kendall Massey 12/13/21 Air Conditioning Duct work completed Read More Lance Kendall Massey 11/18/21 Lance Kendall Massey 11/18/21 Concrete Poured, New door, Finishing Framing Read More Lance Kendall Massey 11/10/21 Lance Kendall Massey 11/10/21 Plumbing dirt filled in Read More Lance Kendall Massey 10/25/21 Lance Kendall Massey 10/25/21 Framing update Read More Lance Kendall Massey 10/13/21 Lance Kendall Massey 10/13/21 Framing Begins Read More Lance Kendall Massey 9/29/21 Lance Kendall Massey 9/29/21 Day 1 : Demo begins Read More Lance Kendall Massey 9/21/21 Lance Kendall Massey 9/21/21 City Approved ! Read More Lance Kendall Massey 9/20/21 Lance Kendall Massey 9/20/21 Crossing Over Sunday Read More Lance Kendall Massey 7/29/21 Lance Kendall Massey 7/29/21 Electrical Demo has Begun! Read More Lance Kendall Massey 6/24/21 Lance Kendall Massey 6/24/21 New Air Conditioning Installed Read More Lance Kendall Massey 4/4/21 Lance Kendall Massey 4/4/21 Latest Floor Plan Read More Lance Kendall Massey 3/29/21 Lance Kendall Massey 3/29/21 We have POWER Read More Lance Kendall Massey 3/23/21 Lance Kendall Massey 3/23/21 Keys! Read More Older Posts
Lance Kendall Massey 1/7/22 Lance Kendall Massey 1/7/22 Sheet rock almost finished! New Front Door! Read More
Lance Kendall Massey 12/13/21 Lance Kendall Massey 12/13/21 Air Conditioning Duct work completed Read More
Lance Kendall Massey 11/18/21 Lance Kendall Massey 11/18/21 Concrete Poured, New door, Finishing Framing Read More